0551-63668229
在施工地 > 在施工地

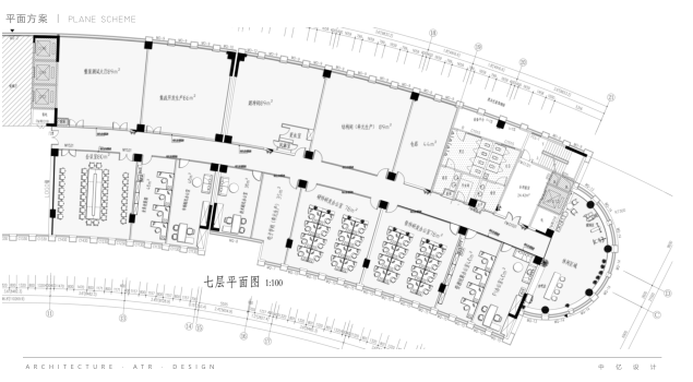
合肥中科红外精密仪器办公室装修工程

基础信息

项目名称:合肥中科红外精密仪器有限公司办公室装修工程

项目面积:1500平米

项目地址: 安徽省合肥市

设计、施工单位:安徽中亿装饰建筑有限公司

0.jpg

image.png

image.png

image.png


×

咨询您想要的方案

为了您的权益,您的隐私将严格保密

免费咨询:

0551-63668229