0551-63668229
在施工地 > 在施工地

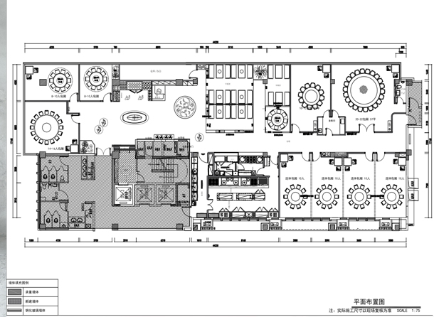
徽水渔畔餐饮旗舰店装修工程

基础信息

项目名称:徽水渔畔餐饮旗舰店装修工程

项目面积:1500平米

项目地址: 合肥

设计、施工单位:安徽中亿装饰建筑有限公司


1776906774329854.jpg

2.jpg

7.jpg

5.jpg


×

咨询您想要的方案

为了您的权益,您的隐私将严格保密

免费咨询:

0551-63668229